福井市江守中モデルハウス2
外観、テイストを変えた新型モデルハウス
当社の提案要素である『SKIP』『DEN』を取り入れた新しいタイプのデザイン住宅で、キッチンと横並びのダイニングテーブルスタイルで家事動線を最短距離で実現し家事負担を大幅に軽減します。
キッチンの正面に『SKIP』『DEN』を配置することで、お母さんが家事をしながらお子様のお勉強風景を確認できたり、『DEN』では半個室の書斎としての機能を持たせることで家族がどこにいても気配を感じられる設計です。
一般的な断熱等級6程度の断熱性能の場合、吹抜け空間を併設すると空間冷暖房の効果が著しく低減しますが、断熱等級7の性能は断熱等級6の約2倍の断熱性能を持つため圧倒的な冷暖房効果により快適な空間設計が自由度高く可能です。
断熱等級7を誇るロジックホームの超高性能住宅だからこそ実現可能な空間設計です。





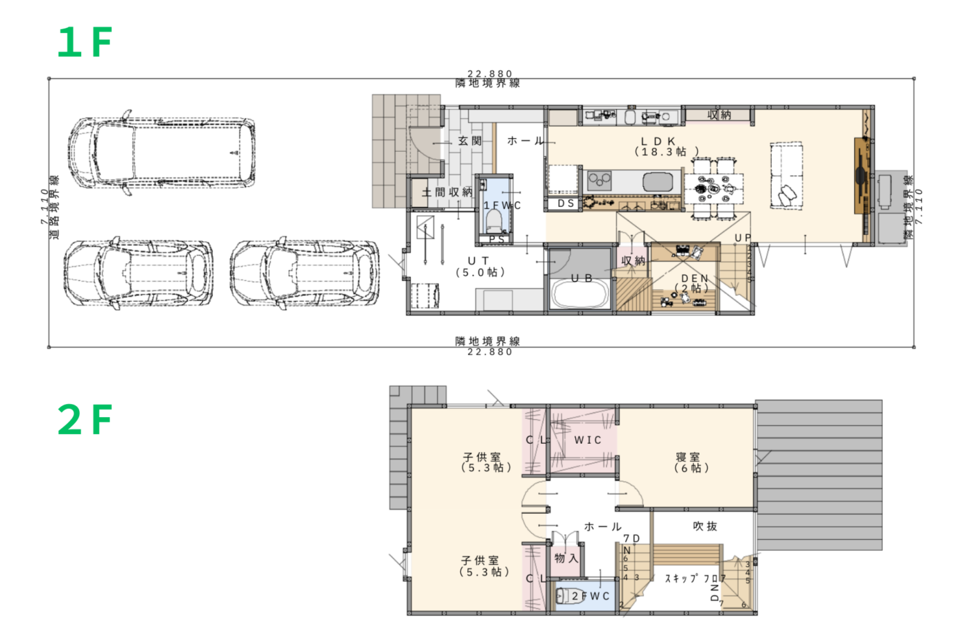
江守中モデルハウス2・間取り

| 3LDK | 敷地面積:162.67㎡(49.20坪) 建築面積:61.27㎡(18.53坪) 1階床面積:59.70㎡(18.05坪) 2階床面積:47.28㎡(14.30坪) 延床面積 : 106.98㎡(32.36坪) 施工面積:111.12㎡(33.61坪)※ポーチ・吹抜け含む |
アクセス
江守中モデルハウス1
『※現在、旧江守中モデルハウス1は販売が完了しております。』
自由時間を彩る暮らしへ
超耐震で地震に強く、超断熱だからエアコン1台で家全体をカバー。圧倒的性能のモデルハウスで住み心地や快適性を体感してみてください。耐震性能最高等級(許容応力度計算)3、断熱最高等級7を誇る『価格も性能も妥協しない』ロジックホームの標準仕様でのモデルハウスです。超高性能住宅をローコスト住宅に引けを取らない価格でご提案させていただきます。






フォトギャラリー
DEN・デン



- LDKに隣接した空間を緩やかに繋げるDEN
- 個室感を持ちながらも完全分離しない空間設計
- 趣味やデスクワークなど個人の空間として活用
NUK・ヌック



- ベンチとして活用できるヌック
- おやすみ前のお子様とのくつろぎのスペースとして
- 空間を暗くして夜空を楽しめるスペース
- ヌック前のベンチと合わせて多人数で楽しめる空間設計
- LDKと吹き抜けを介して緩やかにつながる場所
住まう方の想いを大切に
いつでも飽きの来ない空間設計にシンプルなテイストを取り入れることで、日ごとに増していく愛着を創造する設計をご提案しています。若い世帯からご年配の世帯までどなたにも選ばれるテイストで世代を超えた空間提案です。
『NUK』『SKIP』『DEN』『DOWNFLORE』など多種多様な空間を彩る空間設計のご提案を取り入れています。






デザイン×高性能
私たちロジックホームの家づくりのコンセプトは「性能もデザインする家」。
「人を魅了する美しさ」としてのデザイン。
そして「住み手を快適にする機能」としてのデザイン。
さらには、住まう人の健康とランニングコストを考慮し、
光熱費、室温、結露、冷暖房効率に至るまで「性能」もデザインする家づくりを実現します。
外観のデザイン
ロジックホームが考える家づくりのデザインテーマは「大人のための普遍的デザイン」。
それは、奇抜なものや派手なものではなく、そして、単に流行を追い求めるデザインでもありません。機能性に裏打ちされた必然から生まれるデザインで、シンプルでありながらも、お客様らしい大人のセンスを感じる佇まいを創ります。
女性にも男性にも好まれ、歳を重ねても、いつまでも住まい手に寄り添う普遍的なデザインは、暮らしに溶け込み、末永く愛される住まいを演出します。
その家の資産価値まで高める美しいデザインは、私たちの家づくりに欠かせない大切な要素の1つです。


















『2026年太陽光乗せ放題キャンペーン(期間・棟数限定)』

電気代はどこまで上がる?今まさに家計を直撃する現実
深夜電力は“安い”の神話が崩壊
かつて「オール電化住宅は光熱費が安い」という神話がありました。深夜電力が1kWhあたり 7円台だった頃、多くの家庭が「夜間にエコキュートや食器洗い乾燥機を動かせば電気代を節約できる」と考え、オール電化を選びました。
しかし現在、深夜電力は 26円台/kWh に高騰。実に 3.7倍 に跳ね上がっています。
シミュレーションで見る家計への影響
一般的なご家庭が月に1,000kWhを消費し、そのうち7割を深夜電力に依存していた場合、
- 以前:700kWh × 6円 ≒ 4,200円
- 現在:700kWh × 26円 ≒ 18,200円
その差は +12,000円/月、年間144,000円の増加。これに住宅ローンが重なると、家計のバランスが一気に崩れてしまうのです。
太陽光発電で家計を守るという選択肢
電気代高騰時代の“唯一の防衛策”
電気代は今後も年率2%ほどの上昇が見込まれています。つまり、何もしなければ 毎年じわじわと負担が増える仕組み になっているのです。
これを打ち破る唯一の方法が 太陽光発電の導入。自宅で電気を生み出すことで、電力会社から買う電力量を減らせるだけでなく、余剰分は売電して収益に変えられます。
参考事例① 福井県A様邸(4人家族)
- 導入前:月平均電気代 26,000円
- 太陽光8kW設置後:電気代 6,348円 + 売電収入 17,403円(4月実績)
- 実質家計負担:-11,055円(黒字)
「住宅ローンに電気代が乗る心配がなくなり、安心して暮らせるようになった」との声もいただきました。
超太陽光 × 断熱等級7で“資産を生む家”へ
高断熱住宅が太陽光の真価を引き出す
断熱等級7の住宅は、室内の熱損失を大幅に抑えるため、消費電力そのものが激減します。これに太陽光を組み合わせれば、
- 電気代削減
- 余剰電力の売電
- 蓄電池による自家消費率向上
という「三重のメリット」を享受できます。
オーナー様宅太陽光発電状況
令和8年の2月から4月の発電収支状況です。
2月は売電が9,312円で買電が8,301円になり収支プラス1,011円。
3月は売電が18,359円で買電が10,307円になり収支プラス8,052円。
4月は売電が17,403円で買電が6,348円になり収支プラス11,055円。(4月26の為、残日数分は更にプラス)
常にエアコンはAI自動モードで稼働しており、雪の降る2月でも電気料金の収支はプラスに転じています。
断熱等級7×太陽光乗せ放題の効果は計り知れないものがあり、お客様は電気代を気にしない
圧倒的な快適生活を送られています。



太陽光は“生涯コスト削減の一部”と考える
初期費用の考え方
太陽光の設置費用は150~300万円程度。電気代削減と売電収入で16年前後で回収。その後は 収益資産 として機能します。ここで注意が必要なのは、初期費用の回収年数です。1Kwあたり28万~30万で搭載した場合16年前後で回収が可能ですが、この期間中は初期費用を回収しているにすぎないということを忘れてはいけません。
重要なのは初期費用がいくらで搭載できるかで、プラスに転じる総額が変わるということです。
高い金額でどれだけ搭載しても、16年間もの間はメリットが発生していない点に注意です。
太陽光で資産形成
新築住宅を建てる際に太陽光を搭載しておくと、住み始めたその日から電気代を気にすることなく快適な住環境が手に入ることになります。
下記の表では多様項を8.3Kw搭載した場合の、太陽光のメリット分が50年間で790万円も発生していることから、生涯コストを大幅に削減していることがわかります。
太陽光削減分は住宅ローン返済額を圧縮する
太陽光を搭載することで月々3,000円削減できたとすると、住宅ローンに換算して100万円を35年で借りていることと同じ計算になります。
つまり電気代を月々12,000円削減できたとすると、住宅ローンに換算すると400万円分を借入削減した事とお同じになります。
2004.08.18.pdf-1400x990.png)
福井市大宮5丁目分譲地販売

豊かな環境に恵まれた立地環境
希少性の高い福井市大宮5丁目での分譲地販売会を開催します。坪数もちょうど良いサイズでの区画となりますので建築総額を抑えることができます。詳しくは総予算表にて家づくりの総額でご提案をさせていただきます。
各分譲地の詳細は下記のバナーをクリックして頂くとご覧頂けます。
基本仕様(当社標準仕様)
断熱性能
- Ua値 0.21〜0.26W /㎡・K(断熱等級7標準) ※おおよそのプランの平均値であり間取りや窓の量によって変化します。プラン毎にUa値を計算し偽りのない資料にてご提示します。※BELS評価書にて公的なUa値の証明書を発行します。
- ※モデルハウスは窓の量を最大量搭載しているためUa値0.27 /㎡・Kとなります。
- トリプルガラス(オール樹脂サッシ)EW
- 気圧制御型熱交換第1種換気システム(熱回収型換気扇)
- W断熱工法(充填断熱+外断熱)
耐久性能
- ボロンdeガード全構造材施工(建物全体防腐防蟻)
- ボレイトシール工法(シロアリ対策)
- 断熱気密基礎パッキン(シロアリ・気密・腐り対策)
耐震性能
- 許容応力度計算耐震等級3(耐震性能最高等級)※構造計算
- Kダンパー(制振装置・地震対策)
- タイガーEXハイパー耐力面材(モノコック構造)
- ベタ基礎(許容応力度計算対応)
- 6.6倍耐力壁(地震対策)
気密性能
- C値 0.13㎠/㎡(建物全体の隙間面積)※モデルの実測
- 吹付硬質ウレタンフォーム(発泡断熱材)
- 防湿気密シート(壁体内結露対策)
- シロアリ返し付き断熱気密パッキン(シロアリ・気密・腐り対策)
江守中モデルハウス1・間取り

| 3LDK | 敷地面積:162.67㎡(49.20坪) 建築面積:68.11㎡(20.60坪) 1階床面積:64.59㎡(19.53坪) 2階床面積:55.27㎡(16.71坪) ※吹抜含む 延床面積 : 119.86㎡(36.24坪) ポーチ:2.89㎡(0.87坪) 施工面積:122.75㎡(37.11坪) |
アクセス
| 会場 | 〒918-8025 福井県福井市江守中町2-14-3 |
| 時間 | 9:00〜18:00 |
| 休み | 水曜日 |
| 備考 | 来店予約優先 当日の案内は電話にて受付 |
来場ご予約
LINEでご予約
1.ロジックホームLINEアカウントを「友だち」追加
2.モデルハウス名・お名前・ご希望日時を送信
公式アカウントですので他の方には知られることはありません。安心してご予約ください。

電話でご予約
tel.0776-58-3249
[9:00〜18:00]






